Custom Container Builders
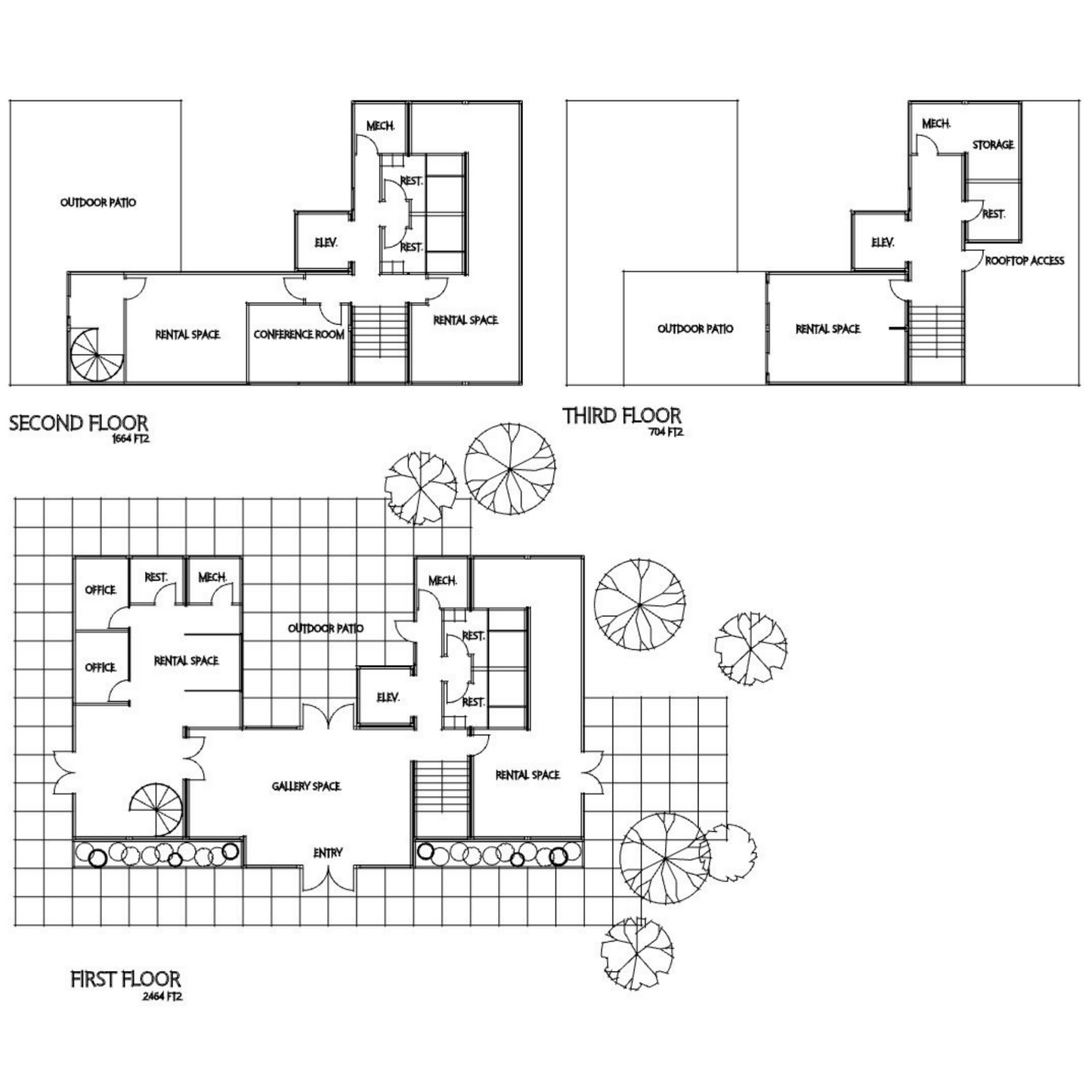
Co-Working Space
Co-Working Space
Custom Container Builders offers a wide variety of custom and pre-designed solutions to meet a variety of commercial use applications. Whether you need a temporary sales center, pop up retail location, or luxury boutique hotel, the diverse range of applications and uses for container buildings are endless.
Contact us today to begin planning your commercial project!



