Custom Container Builders
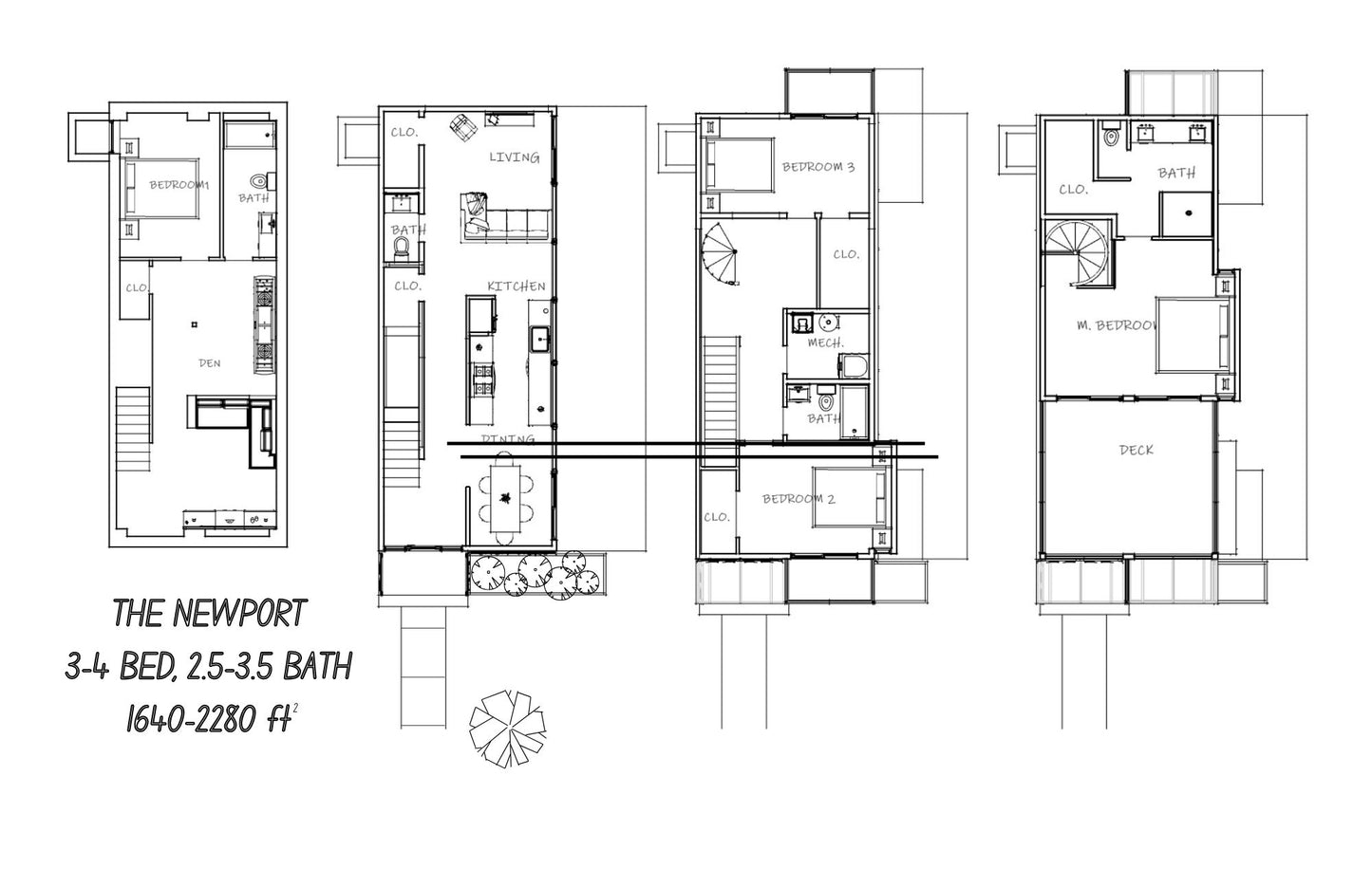
Newport
Newport
3 Beds | 2 Bathrooms | 1640 Sqft
This modern 3-bedroom, 2-bathroom container home offers 1,640 square feet of smart, efficient living space—crafted with quality by Custom Container Builders. The open-concept design features clean lines, contemporary finishes, and an abundance of natural light. Upstairs, enjoy a private walk-out patio perfect for relaxing, entertaining, or taking in the surrounding views. Built with durability and style in mind, this home redefines modern living with a bold, sustainable edge.





